● 结构紧凑,小巧灵活 ● 座驾舒适方便 ● 安全制动,合理可靠
特性
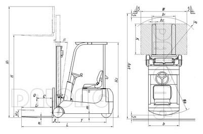
产品型号
CPD1025S
CPD1032S
驱动形式
电动
驾驶方式
座驾式
额定载重
Q
kg
1000
载荷中心
C
mm
400
基本尺寸
总长
L
2390
车体宽度
b
932
总高
H2
1970(H2)
2220(门架高度)
起升高度
H
2500
3200
作业时最大高度
H1
3275
3975
自由提升高度
H3
140
货叉尺寸 L1xb2xm
800x100x32
货叉外宽
b1
230~610
最小离地间隙
m1
80
最小直角通道
1906
最小堆垛通道
Ast
2765(for Pallet 1200×800)
门架倾角
α/β
°
1/7
轴距
Y
1260
前悬距
X
165
转弯半径
Wa
1440
性能
行驶速度
满载
Km/h
4.9
空载
6.0
提升速度
mm/s
100
下降速度
181
175
爬坡能力
%
8
制动方式
机械制动
电机
驱动电机功率
KW
2.0
提升电机功率
蓄电池容量/电压
Ah/V
300/24
重量
自重(不含电池)
CPD7.5S
1320
CPD10S
1465
电池重量
275